【価格】2,980万円
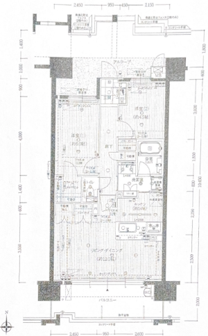
【広さ / 間取り】60.58㎡ / 2LDK
【交通】伊予鉄道松山駅前線『勝山町』駅 徒歩3分
伊予鉄道松山駅前線『大街道』駅 徒歩4分

【特徴】
・まもなく内覧可能!!(詳細はお問合せください。)
・市内中心部築浅マンション
・駅近
・大街道商店街歩いてすぐ
・南向き
・ペット可能
| 所在地 | 愛媛県松山市歩行町1-6-5 | ||
| 土地権利 | 所有権 | ||
| 敷地面積 | – | ||
| 用途地域 | 近隣商業地域 | 総戸数 | 48戸 |
| 建築年月 | 2015年3月 | 構造 | 鉄筋コンクリート造 |
| 階数 | 14階建 | 所有階 | 2階 |
| 専有面積 | 60.58㎡ | バルコニー面積 | 12.00㎡ |
| 間取り | 2LDK | ||
| 管理費 | 月額 9,100円 | 修繕積立金 | 月額 10,900円 |
| その他 | |||
| 設計会社 | – | 施工会社 | |
| 分譲会社 | セントラル総合開発(株) | 管理会社 | セントラルライフ株式会社 |
| 管理形態 | 全部委託 | 管理員 | 日勤 |
| 駐車場 | – | 自転車置き場 | – |
| バイク置き場 | – | ペット飼育 | 飼育可(飼育細則有) |
| 現況 | 空室 | 引渡し | 相談 |
| 備考 | 内覧可能 | ||